Two-Storey House Section Drawings: Choosing The Right Scale

S.Selfpubbookcovers 85 views
Two-Storey House Section Drawings: Choosing The Right Scale

Two-storey houses are awesome, guys! And when you’re diving into the nitty-gritty details with section drawings, choosing the right scale is super important. It’s like picking the perfect lens for your camera – you want to capture all the essential bits without missing anything or making it look cluttered. So, which scale should you be using for a section drawing of a two-storey house? Well, the short answer is, it depends! But don’t worry, we’re going to break it down for you so you can make the best choice for your project. We’ll be talking about why scale matters, what the common options are, and how to pick the one that will make your drawings crystal clear and super informative. Whether you’re an architect, a builder, or just a curious homeowner, understanding scale in section drawings is key to effective communication and successful execution of your building plans. Let’s get this party started and demystify the world of architectural scales!

Why Scale Matters in Section Drawings

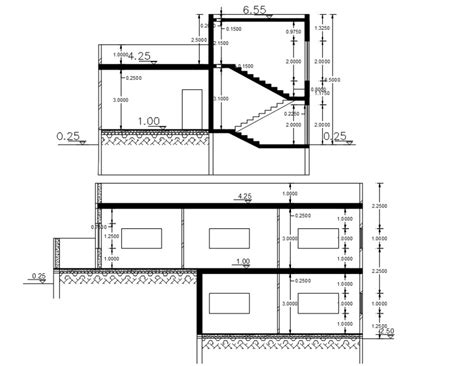
Alright, let’s chat about why scale is such a big deal in section drawings, especially for something like a two-storey house. Think of a section drawing as slicing through your house vertically to show all the hidden stuff – the layers of walls, the floor structures, the roof build-up, plumbing, electrical, all that jazz. Now, imagine trying to draw that at its actual size. Impossible, right? That’s where scale comes in. It’s essentially a ratio that tells you how much smaller the drawing is compared to the real thing. For example, a scale of 1:50 means that one unit on the drawing represents 50 of the same units in reality. So, a 100cm wall in real life would be just 2cm on your drawing.

The main reason scale is critical is for clarity and communication . A good scale allows you to show enough detail so that anyone reading the drawing – be it a contractor, an inspector, or even yourself – can understand exactly how things are constructed. If the scale is too small (meaning the drawing is too large relative to the real object, like 1:10), you might end up with a drawing that’s way too big to be practical, and you might not even fit all the necessary information on a standard sheet. On the other hand, if the scale is too large (meaning the drawing is too small relative to the real object, like 1:200), all the crucial details like the thickness of a wall stud, the position of insulation, or the path of a pipe will just become a blurry mess. You won’t be able to see the critical connections and construction methods. Accurate representation is key to avoiding costly mistakes on site. Imagine a builder trying to figure out the exact placement of a load-bearing beam based on a drawing where it’s just a tiny line – disaster waiting to happen! So, choosing the right scale ensures that the drawing is both detailed enough to be useful and manageable in size . It’s a balancing act, but a crucial one for any architectural project, especially when dealing with the complexities of a multi-level dwelling like a two-storey house.

Common Scales for Section Drawings

Now that we know why scale is so darn important, let’s dive into the common scales you’ll see used for section drawings of a two-storey house. These are the tried-and-true ratios that architects and designers typically reach for because they strike a good balance between detail and practicality. The most frequent players in this game are usually 1:50 and 1:100 . Let’s break them down, guys.

1:50 Scale : This is often considered the go-to scale for detailed section drawings. At 1:50, you can show a good amount of information without the drawing becoming overwhelmingly large. You can clearly represent things like wall construction layers (e.g., plasterboard, insulation, studs, external cladding), floor joist sizes and spacing, window and door details, and even basic plumbing and electrical runs. It’s great for showing how things are put together in a specific area. Think of it as zooming in just enough to see the important components clearly. This scale is particularly useful for showing critical junctions, like where a floor meets a wall, or how the roof structure connects to the upper storey walls. It’s detailed enough to guide construction accurately.

1:100 Scale : This scale is a step back, offering a broader overview. At 1:100, you’re showing less minute detail but more of the overall structure. It’s useful for showing the general layout of services (like main ducts or pipe runs) or the relationship between different structural elements across a larger area of the section. While you might not see the individual studs, you’ll see the overall depth of floor structures or the general build-up of walls. 1:100 is often used for more general arrangement drawings or for showing larger sections of the building where the fine details aren’t the primary focus. It allows you to fit more of the building onto a single drawing sheet, which can be really helpful for understanding the overall flow and configuration.

Other Scales : While 1:50 and 1:100 are the most common, you might sometimes see other scales used for specific purposes. For instance, 1:20 or 1:25 might be used for extremely detailed areas, like the connection of a complex roof detail or a bespoke window installation. These are considered enlarged scales and show a lot of fine-grained information, but they significantly increase the drawing size. On the flip side, scales like 1:200 or 1:250 are typically used for site plans or overall building layouts, not usually for detailed section drawings of a house itself, as they lack the necessary detail. So, when you’re thinking about a section drawing for a two-storey house, keep 1:50 and 1:100 as your primary considerations.

Factors Influencing Scale Choice

Choosing the perfect scale for your two-storey house section drawing isn’t just about picking a number out of a hat, guys. Several factors come into play, and understanding them will help you make the best decision for your specific needs. It’s all about balancing the need for detail with the practicalities of drawing size and intended use.

The primary factor is the level of detail required . What are you trying to show with this section drawing? If you need to illustrate the precise layering of insulation within an external wall, the exact spacing of floor joists, or the intricate connection of a structural beam to a supporting column, you’ll need a larger scale (meaning a smaller ratio number, like 1:50 or even 1:20 for highly critical details). These scales allow you to draw these elements large enough to be clearly understood and dimensioned. On the other hand, if the section drawing is more about showing the general arrangement of rooms, the overall height of storeys, or the basic flow of major services like ventilation ducts, a smaller scale (like 1:100 ) might be sufficient. This scale is good for conveying the broader picture without getting bogged down in minutiae.

Another huge consideration is the size of the drawing sheet . Architectural drawings are often printed on standard paper sizes (like A1, A2, A3). If you try to show a whole two-storey house section at a very large scale, say 1:20, you’d need an enormous sheet of paper to fit it all, which might not be practical or cost-effective. Conversely, if you use a very small scale, like 1:200, for a detailed section, you’ll end up with lots of empty space and potentially illegible tiny lines. The goal is to select a scale that allows all the necessary information to be presented clearly on a manageable sheet size. Think about who will be using the drawing . If it’s for a general contractor on a large site, they might prefer a slightly smaller scale that shows more context. If it’s for a specialist installer working on a specific detail, a larger scale might be absolutely essential. So, the audience and their needs play a significant role.

Finally, the complexity of the design itself matters. A simple, standard two-storey house might be adequately represented at 1:100 for many purposes. However, if your design incorporates complex structural elements, unusual wall assemblies, or integrated mechanical systems, you’ll likely need a larger scale (like 1:50) to properly document these features. The type of information you need to convey dictates the scale. Always ask yourself: ‘Can the essential details be clearly seen and understood at this scale?’ If the answer is no, you need to adjust your scale. It’s a process of iteration, really, trying different scales until you find the one that best communicates your design intent and construction requirements. Don’t be afraid to use different scales for different drawings within the same project; that’s a common and smart practice in architectural documentation.

Practical Tips for Using Scales

Alright, team, let’s wrap this up with some practical tips to make using scales for your two-storey house section drawings a breeze. We’ve covered why it’s important and what scales to consider, so now let’s get into the nitty-gritty of how to use them effectively. Think of these as your trusty sidekicks in the world of architectural drawing!

First off, always use a scale bar . This is super important, guys! A scale bar is a graphical representation of the scale, usually a line marked with increments (like 0, 1m, 2m, etc.). Why is this a game-changer? Because paper can shrink or expand slightly due to humidity or printing processes. If someone uses the written scale (e.g., 1:50) and the paper has shifted, their measurements will be off. But if they use the scale bar, they can physically measure the bar on the drawing to get the correct real-world dimension, even if the paper has changed size a bit. It’s like a built-in accuracy checker! Make sure your scale bar is clearly visible and labelled with the correct scale.

Secondly, be consistent with your scales . Within a single drawing or a set of related drawings, try to stick to one or two primary scales. For instance, if your main section drawing is at 1:50, any detail call-outs on that drawing should ideally refer to details drawn at a larger scale (like 1:20 or 1:10) that are provided elsewhere. Mixing too many scales randomly on one sheet can lead to confusion. If you need to show a detail that doesn’t fit the main scale, it’s usually best to draw that detail on a separate sheet or in a dedicated